Аренда офиса м. Фрунзенская, ул. Россолимо (ЦАО) площадью 140 кв.м.
ID объекта 23528|
Интересные предложения |
Аренда офис, площадь 140 м2
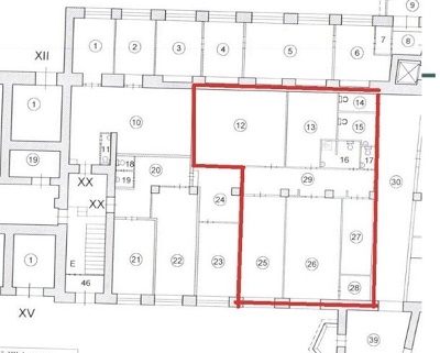
Тип объекта: офис Общая площадь: 140 м2 Хар-ки: 1-й этаж , административное здание , бизнес-центр класс "В" , кабинетная планировка , юр. адрес Подходит под: другое Юридический адрес: ИФНС № 4
Район: ЦАО Метро: м. Фрунзенская От метро: 8 мин.пешком Адрес: ул. Россолимо
Сдается в аренду офисный блок кабинетной планировки, есть свой санузел, площадью 139.5 кв.м. Офис расположен на первом этаже офисного центра. Шаговая доступность от метро. Ставка 30000 рублей за м2 в год с НДС и эксплуатацией, отдельно вывоз мусора и электричество. ИФНС 4. Арендная ставка 349000 руб. в месяц
Цена за кв.м.: 30000 руб.
Агент: Алексей Валерьевич Моб. телефон: +7 (915) 338-12-91 Телефон: +7 (915) 338-12-91 Если Вас заинтересовал этот объект, Вы можете оставить заявку, и ответственный специалист сам свяжется с Вами. |
Другие предложения с аналогичными характеристиками:
Аренда офиса в Бизнес-центре класса В
Список бизнес-центров класса В
Аренда офиса на первом этаже

