Аренда офиса м. Добрынинская, ул. Партийный пер. (ЦАО) площадью 336 кв.м.
ID объекта 23632|
Интересные предложения |
Аренда офис, площадь 336 м2
Тип объекта: офис Общая площадь: 336 м2 Хар-ки: административное здание , кабинетная планировка , свободная планировка , юр. адрес Подходит под: другое Юридический адрес: ИФНС № 25
Район: ЦАО Метро: м. Добрынинская От метро: 12 мин.пешком Адрес: ул. Партийный пер.
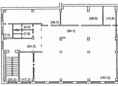
Сдается офисный блок смешанной планировки, с собственным санузлом, площадью 336 кв.м. Офис в рабочем состоянии, расположен на 4 этаже офисного здания. Ближайшие ст метро Серпуховская, Добрынинская и Павелецкая в шаговой доступности. Предоставляется юр адрес по 25 ИФНС. Арендная ставка 645000 руб. в месяц
Цена за кв.м.: 23000 руб.
Агент: Алексей Валерьевич Моб. телефон: +7 (915) 338-12-91 Телефон: +7 (915) 338-12-91 Если Вас заинтересовал этот объект, Вы можете оставить заявку, и ответственный специалист сам свяжется с Вами. |
Другие предложения с аналогичными характеристиками:
Аренда офиса с кабинетной планировкой
Аренда офиса с юр. адресом

