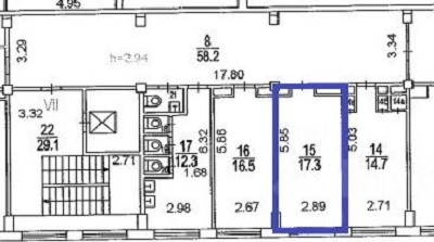
Аренда офиса м. Шоссе энтузиастов, Электродная ул. (ВАО) площадью 17 кв.м.
ID объекта 23727|
Интересные предложения |
Аренда офис, площадь 17 м2
Тип объекта: офис Общая площадь: 17 м2 Хар-ки: административное здание , юр. адрес Подходит под: другое Юридический адрес: ИФНС № 20
Район: ВАО Метро: м. Шоссе энтузиастов От метро: 7 мин.пешком Адрес: Электродная ул.
В аренду сдается кабинет площадью 17.3 кв.м., на втором этаже административного здания. Кабинет с окном, в рабочем состоянии, готов к въезду. Метро в 7 минутах ходьбы. На территории есть круглосуточная платная парковка. Предоставляется юр адрес по 20 ИФНС. Арендная ставка 20800 руб. в месяц
Цена за кв.м.: 14400 руб.
Агент: Алексей Валерьевич Моб. телефон: +7 (915) 338-12-91 Телефон: +7 (915) 338-12-91 Если Вас заинтересовал этот объект, Вы можете оставить заявку, и ответственный специалист сам свяжется с Вами. |

